Your New Home Awaits

Welcome Home

NEWLY RENOVATED UNITS AVAILABLE! Nestled in the foothills of the Blue Ridge Mountains, Staunton offers unrivaled scenic views year-round. Just off of I-81, our location provides unprecedented highway access to both I-81 and I-64. Unwind by our sparkling swimming pool, bond with friends or family and fish in one of our two stocked ponds, or have a picnic with your significant other. The Grove at Manchester has a little something for every member of your household. You’ll be minutes away from Staunton’s historic Downtown where you can enjoy shopping, entertainment, art galleries, and fantastic dining. It’s country living with city flair! The Grove is a wonderful, tranquil community with extremely friendly staff that will help you at the drop of a hat. Maintenance-free living!

Trash Included in Rent!

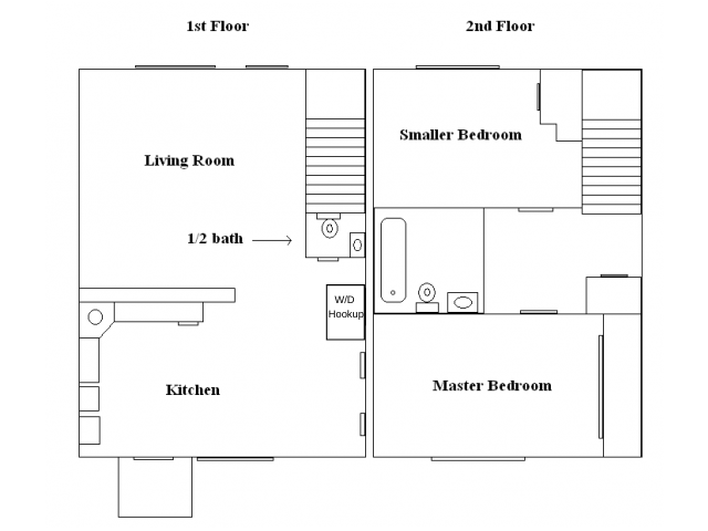
Floor Plans

Explore our Spacious Two Bedroom Townhomes!

Amenities

Luxurious Amenities at The Grove at Manchester

Unwind after a long day at The Grove at Manchester! Enjoy our convenient on-site laundry facilities, or stroll through our gorgeous property!

  • NEWLY RENOVATED INTERIORS +Spacious Dual-Level Floor Plans
  • Private Entrance
  • Central Air Conditioner
  • Cable-Ready
  • Fully Equipped Kitchens (Dishwasher, disposal, refrigerator, range)
  • Washer/Dryer Hookups OR rentals $50/mo.
  • Ample Storage & Closet Space

*In-Select Units

  • Pool +Unrivaled Scenic Views Year-Round
  • Convenient Highway Access to Both I-81 and I-64
  • Refreshing Pool
  • Fishing Ponds
  • Laundry Facilities
  • Onsite Management
  • 24/7 Maintenance

Location

The Grove at Manchester

We are located in the heart of Staunton - with convenient interstate and commuter access!

Cafes

  • Perk Place Coffee Co
  • The By & By
  • The Queen Bean

Parks

  • Betsy Bell Wilderness Park
  • Gypsy Hill Park
  • Montgomery Hall Park
  • Ridgeview Park

Restaurants

  • Byers Street Bistro
  • Emilios Italian Restaurant
  • Massaki Japanese Steakhouse & Sushi Bar
  • The Green Room

Shopping

  • Food Lion
  • Kroger
  • Martins Food
  • Walmart

Residents

Convenient Online Services

We've set up a quick and easy way for you to pay your rent online so you can focus on the more important and fun things in life. Visit our Resident Portal and pay rent with a simple click of the button.

Contact

Contact Us About Our Two-Bedroom Townhomes

We can't wait to meet you! Contact our team or complete a contact form for more info.

Address
Office Hours

M - F: 9:00AM-5:00PM
Sat-Sun: Closed

Contact Us
Please enter your name...
Please enter a valid email address...
Please enter a valid phone number...